Casa singola in Vendita a Fermo

Zona: castiglionese

130 mq 2 Bagni 3 Camere 4 Locali
Codice: cm832 € 550.000

L'agenzia immobiliare CM casa propone in esclusiva di vendita a Fermo, situata nella tranquilla zona della castiglionese, incantevole casa singola in corso di costruzione, un'opportunità unica per chi desidera vivere in un ambiente moderno e confortevole.
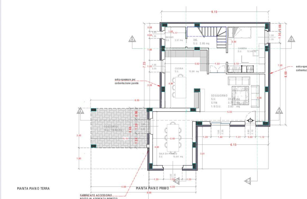
L'abitazione si sviluppa su due livelli per un totale di 170 mq circa oltre un loggiato, un terrazzo e un grande giardino, sarà completata nel giugno 2026 con un design super moderno e raffinato.
Al piano terra, si trova un ampio soggiorno luminoso che si affaccia sul giardino circostante, una cucina abitabile, una grande sala/pranzo che si affaccia sul loggiato (ideale anche come rimessa auto al coperto), allo stesso piano si trova una camera da letto e un bagno di servizio completo.
Salendo al piano superiore, si accede al reparto notte che accoglie due camere da letto, una dotata di cabina armadio, un bagno di servizio e un ripostiglio o secondo bagno. La zona notte gode dell'affaccio diretto al grande terrazzo panoramico. Questo livello infatti offre una vista panoramica sulla zona circostante, sul mare e sulla città.
Grazie all'ottima esposizione solare, la casa è dotata di pannelli fotovoltaici per garantire un utilizzo sostenibile dell'energia, infatti l'impianto a radiatori/pannelli radianti assicura un clima confortevole durante tutto l'anno, permettendo cosi spese di consumi ridotte.
L'esterno è arricchito da un giardino privato, perfetto per rilassarsi all'aria aperta, e da un'ampia area parcheggio con posti auto coperti e scoperti.
Non perdere l'opportunità di acquistare questa splendida casa in una delle zone più prestigiose di Fermo.
Contattaci oggi stesso per organizzare una visita e scoprire tutti i dettagli di questa meravigliosa proprietà.
Possibilità di personalizzazione dei dettagli e rifiniture. Info in agenzia.

Informazioni Immobile
Codice: cm832
Contratto: Vendita
Tipologia: Casa singola
Regione: Marche
Provincia: Fermo
Comune: Fermo
Zona: castiglionese
Prezzo: € 550.000 trattabili
Totale mq: 130 mq
Camere: 3
Bagni: 2
Locali: 4
Piano: Su due livelli
Piani totali: 2
Posto auto: Coperto
Appartamenti Totali: 1
Età costruzione: 2025
Stato attuale: In costruzione
Disponibile: Si
Terrazzo: Presente, 31 mq
Giardino: Privato
Distanza mare: 5.000 mt.
Cucina: Abitabile
Posizione: Zona residenziale

Mappa Immobile

Ultimo Aggiornamento 14-11-2025

Contattaci

CM casa Agenzia Immobililare di Mosca Michela

Piazza Gaslini, 2
Porto San Giorgio (FM)
Telefono 0734301672
Fax 0734301672
Cellulare 3383079417
info@cm-casa.it

* Autorizzo il trattamento dei miei dati personali ai sensi del D.Lgs 196/03 e confermo di aver preso visione dell'informativa sulla privacy.

I campi contrassegnati con * sono obbligatori!